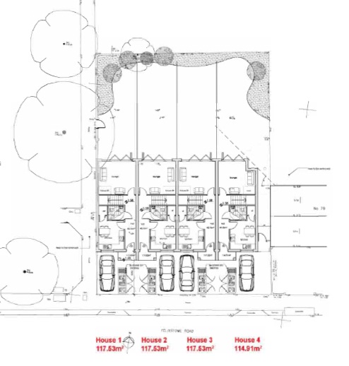
77 Felixstowe road is a development located in London, consisting of 4 houses, and has been built to incorporate a Code level 3 minimum renewable strategy.
Syntegra Consulting Ltd have been commissioned to undertake the following services;
- Code for Sustainable Homes assessment
- Ecology report
- Daylight/ Sunlight calculations report
- Flood risk assesment
- Drainage assesment

You must be logged in to post a comment.