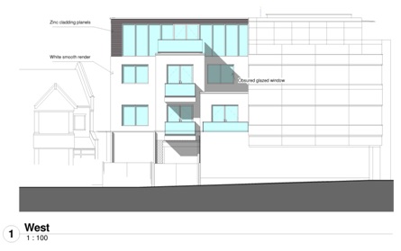
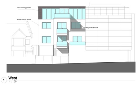
Syntegra Consulting Ltd has been appointed as daylight modelling consultants to produce an Internal Daylight Report for the proposed development which consists of 4 residential units over three floors as an extension to the existing building. This project is located at 177-187 Arthur Road, Wimbledon, SW18 8AE.
It assesses the internal daylight factor within the flats:
- First Floor:
Flat 1 – 1 Bedroom and 1 Kitchen/Dining room
Flat 2 – 1 Bedroom and 1 Kitchen/Dining room
- Second Floor:
Flat 3 – 2 Bedrooms and 1 Kitchen/Dining room
- Third Floor:
Flat 4 – 1 Bedroom and 1 Kitchen/Dining room
The assessment is undertaken in accordance with BRE 209 Digest: Site Layout Planning For Daylight and Sunlight – A Guide to Good Practice.



You must be logged in to post a comment.